Duravit

Elemento de WC DuraSystem, Básico

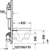
500 x 155 x 1148 mm

Número do produto: 88241

206,90 €
Em stock
Entrega: aprox.

Somente 999 peças disponíveis

Preço incl. IVA e excl. transporte

Esta variante não está disponível de momento. Por favor, selecione outra opção.

  • American Express
  • Apple Pay
  • Google Pay
  • Maestro
  • Mastercard
  • PayPal
  • Shop Pay
  • Visa
  • Klarna

Informações sobre o produto

Elemento de instalação em parede seca DuraSystem para WC

Este elemento de WC DuraSystem® parcialmente pré-montado é adequado para a instalação em parede seca do seu WC montado na parede e esconde elegantemente todas as funções necessárias. A instalação autoportante de WC pré-montada na parede não só esconde um autoclismo oculto, como também contém um impressionante volume de água de descarga de nove litros no total, apesar de uma necessidade mínima de água de descarga de apenas três litros. A função de dupla descarga economizadora de água permite-lhe escolher entre dois volumes de descarga.

Isto não só cumpre os requisitos modernos de higiene, como também garante um controlo económico do consumo de água. O volume da descarga também pode ser definido individualmente. O elemento incorporado está isolado contra a condensação. A placa de descarga mecânica A1, feita de vidro ou plástico, torna o design de alta qualidade da Duravit visível em frente à parede.

Dimensões e especificações

Material Aço (estrutura)
Plástico (cisterna)
Cor Antracite
Largura 500 mm
Altura 1148 mm
Profundidade 155 mm
Área de aplicação WC
Autoportante Construção Sim
Pés Altura regulável, 0 - 240 mm
Volume de água de enxaguamento regulável 6 litros (volume de água de enxaguamento grande)
3 litros (volume de água de enxaguamento pequeno)
Tecnologia de enxaguamento 2-.Tecnologia de volume de descarga
Atuação Frontal
Volume da cisterna 9 l
UP-Cisterna isolada contra condensação Sim
Posição da ligação de água Esquerda|Traseira
Placa de controlo Sem
Peso de envio aprox. 32 kg
Tipo de montagem Drywall
Nível de montagem Parcialmente montado
Incl. Abas de cobertura Sim
Válvulas de canto Sim
Pés Sim

Âmbito de fornecimento

  • Elemento de instalação incl. cisterna

Custos de envio

9,90 EUR

Entrega por serviço de encomenda

Enviamos artigos pequenos e leves via DHL e DPD. O envio para as estações de encomendas não é possível.

Segurança do produto

Marca: Duravit

Informações do fabricante:

Duravit Aktiengesellschaft
Werderstraße 36
78132 Hornberg
Alemanha
info@duravit.de

  • Envio rápido

  • Produção própria

  • 30 dias para devolução

  • Melhor qualidade

Default Title
  • Fabricado em aço com um autoclismo de plástico
  • Adequado para WCs
  • Tipo de instalação: Em construção ligeira de vigas em frente a uma parede sólida
  • Dual flush
  • Tipo de montagem: Drywall

Inspirações dos nossos clientes

Comprar este look

Inspirações para si

Ver Galeria

Vantagens da marca

Design individual de Bernstein

Envio rápido

Abordagem pessoal para cada pedido

Pagamento seguro